


140 758 ₽/м²
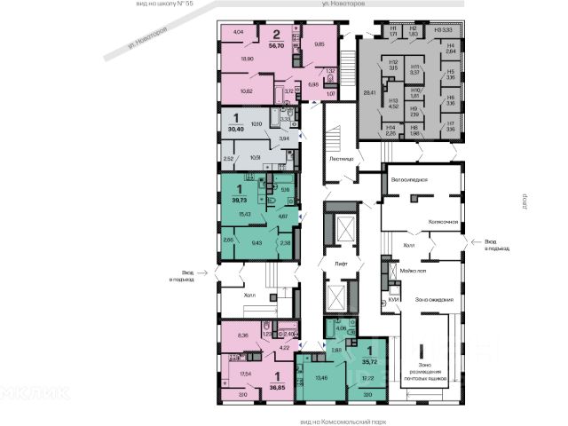
ПРОДУМАННАЯ ИНФРАСТРУКТУРА "Тринити" расположен в тихом спальном районе с богатой и удобной инфраструктурой рядом с Комсомольским парком. В шаговой доступности автобусные остановки, детские сады и школы. В пределах 10-минутной поездки располагаются поликлиники, ТРЦ "М5 Молл" и "Премьер", а также студенческий дворец культуры агротехнологического университета. БЕЗОПАСНЫЙ ДВОР Продуманный и благоустроенный двор закрыт от машин и от посторонних вам не придётся переживать о безопасности детей и своём комфорте. С собственным парком во дворе площадью 4500 м2 вы сможете больше времени проводить на свежем воздухе: для детей предусмотрены разноплановые игровые комплексы, а для взрослых спортивные тренажеры. Архитектурная подсветка фасадов и двора расставляет акценты и подчеркивает эргономичность. ВХОДНЫЕ ГРУППЫ В "Тринити" спроектированы многофункциональные входные группы с отделкой по индивидуальному дизайн-проекту. Мы предусмотрели: прозрачные входные группы без ступеней удобные для всех категорий граждан; сквозной проход, чтобы вы видели всё, что происходит внутри и снаружи; велосипедные и колясочные, места для ожидания курьера, такси или гостей; керамогранитный пол и декоративная отделка. ПРЕДЧИСТОВАЯ ОТДЕЛКА КВАРТИР Мы создаём для вас максимум комфорта и удобства, поэтому квартиры в "Тринити" будут сданы с базовой отделкой: современная шумоизоляция; отсутствие газового оборудования удобно, современно и экономично, тариф для таких квартир ниже; автономная система отопления от собственной котельной; улучшенная звукоизоляция; остекление с применением энергосберегающих технологий.












































































































































