


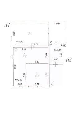
Продаётся просторный дом (ИЖС) в с.Дядьково (20 минут до центра г.Рязани). Площадь дома: 160 м2. Площадь земельного участка: 10 соток. Дом построен для комфортного проживания семьи благодаря современной планировке: 4 спальни, большая кухня-гостиная совмещенная с балконом с панорамными окнами, просторный холл, 2 входные зоны с выходом к парковке и во двор, 2 санузла, отдельная ванная и отдельная бытовая комната. Дом находится в удобной транспортной доступности к г.Рязани. Благодаря удачному расположению на участке, здесь всегда тихо и безветренно. К дому обеспечен подъезд из твердого покрытия. В шаговой доступности есть необходимая бытовая инфраструктура - продуктовые магазины, пункты ПВЗ, остановка общественного транспорта, водоёмы. Расстояние до ближайших детских садов и школ составляет не более 10 минут. Дом построен из качественных и практичных материалов: Фундамент монолитный свайно-ростверкный; Железобетонные капитальные стены утеплены теплоизоляционным слоем 150мм, отделаны декоративной штукатуркой "Knauf Diamant Короед" с элементами декора, перегородки из цементно-песчаных блоков; Перекрытие из железобетонных плит с утеплением. Конструкция кровли выполнена из металлических ферм, что гарантирует длительный срок службы и повышенную прочность кровли. Покрытие кровли из профилированного листа Satin цвета "мокрый асфальт"; Окна пластиковые с трехкамерным остеклением, панорамные окна в помещениях балконов и входных зон. Пластиковые двери в зоны балконов; Входные металлические двери; Отделка WHITE Box, стяжка; Проведены внутренние коммуникации - смонтировано отопление и радиаторы, теплые полы в санузлах, кухне и прихожей, установлен газовый котел высокой производительности, выполнены водопровод, канализация, электрика; Наружные инженерные сети (газоснабжение, электроснабжение) подведены и находятся на границе земельного участка. Водоснабжение организовано из артезианской скважины. Водоотведение выполнено из септика Тополь-6 с функцией автоматической очистки сточных вод. Натяжной потолок предлагается в подарок при заключении предварительного договора купли-продажи! Дата постройки: 2025г. Выгодные условия приобретения! Возможна льготная ипотека! Оказываем бесплатные консультации по вопросам технологического присоединения к инженерным сетям! Предоставляем услуги по чистовой отделки помещений "под ключ" — на усмотрение покупателя! Дом и участок находятся по адресу: Рязанская область, Рязанский р-н, с.Дядьково, ул.Связи, д.5. Кадастровый номер: 62:15:0050225:5427 Все вопросы по телефону! Продаю дом в Рязанской области, кол-во спален: 3..









































































































































































