Мы используем куки-файлы. Соглашение об использовании

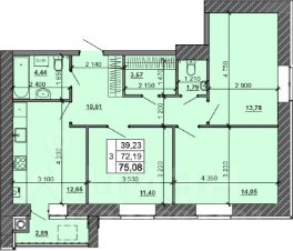
Продается 3-комн. квартира, 75,08 м²

Общая площадь75,08 м²
Жилая площадь39,2 м²
Площадь кухни12,7 м²
Этаж1 из 10
Год сдачи2027
ДомНе сдан
ОтделкаПредчистовая
3-х комнатная квартира в жилом комплексе СОКОЛ СРОК СДАЧИ ДОМА - 3 квартал 2027 года. Комфортный формат для семьи Пространство для большой семьи. Комфортная кухня, три комнаты, два санузла, гардеробная. Баланс общих площадей и личного уголка для каждого. Пространство для роста: Три отдельные комнаты разной площади (от 11,40 до 14,05 м²) позволяют с комфортом разместить родителей и детей или обустроить домашний кабинет. Гардеробная (3,57 м²) завершает эту приватную зону. Два санузла — правило большого дома: Наличие гостевого санузла разделяет бытовые сценарии, сохраняя гигиену и интимность семейной зоны. Свет для здоровья и настроения: Расположение окон на две стороны гарантирует, что солнце будет в разных комнатах в разное время. Это создает здоровую, благоприятную световую среду во всей квартире. Премиальная базовая отделка White Box Premium: идеально ровные стены и надежная дверь для вашего дизайна. Окна премиум-класса гарантируют тишину и тепло в квартире круглый год. Индивидуальное отопление - ваш личный комфорт и управление температурой в любое время. Теплые полы установлены во входной зоне, ванных комнатах и санузлах, даря приятное тепло босым ногам даже в самый холодный день. В доме установлена современная система очистки воды. Она гарантирует, что вода из-под крана будет не только безопасной, но и приятной на вкус, что важно для готовки, питья и ежедневного использования. ЖК "Сокол" — это не просто метры, а тщательно подготовленное пространство, где каждая инженерная система и деталь отделки работают на ваш комфорт, здоровье и экономию. Философия ЖК "Сокол" — это осознанный уединённый формат. Всего 60 семей в одном подъезде создают приватное и безопасное сообщество, где ценится личное пространство. Готовая инфраструктура на улице Крымской Всё для жизни — школы, сады, магазины и парки — уже находится в шаговой доступности, не нужно годами ждать развития района. Сбалансированное благоустройство территории Во дворе созданы продуманные зоны для отдыха, игр детей и занятий спортом, чтобы вам не нужно было искать их далеко от дома. Многоуровневая безопасность на территории и в доме Современные системы безопасности создают спокойную и защищенную среду для жизни всей вашей семьи прямо с порога дома. Проверенное качество строительной компании "Триумф" Вас ждут надежные технические решения и высокий стандарт исполнения, уже доказанные успехом новостроек в Рыбном. ВСЕ ВИДЫ КРЕДИТОВАНИЯ БЕЗ ПОСРЕДНИКОВ И УДОБНЫЕ СПОСОБЫ ОПЛАТЫ: - Семейная ипотека - Ипотека без первоначального взноса - Оплата или первоначальный взнос по материнскому капиталу - Рассрочка платежа Бесплатная финансовая консультация

О квартире

Тип жилья

Новостройка

Общая площадь

75,08 м²

Жилая площадь

39,2 м²

Площадь кухни

12,7 м²

Высота потолков

2,55 м

Санузел

1 совмещенный, 1 раздельный

Балкон/лоджия

1 лоджия

Отделка

Предчистовая

О доме

Тип дома

Кирпичный

Пандус

Есть

Понравилась квартира — узнайте о ней больше

Застройщик ответит на все вопросы

Отделка квартиры

Предчистовая — остаётся установить сантехнику, розетки, двери и навести красоту: поклеить обои и уложить на пол покрытие
Похоже на то, что вы ищете?

Акции в ЖК «Сокол»

Узнайте про персональные условия и дополнительные скидки при покупке квартиры у застройщика
Ипотечный калькулятор
  • Базовая
  • Семейная
  • ИТ-ипотека
  • 20%
  • 30%
  • 40%
  • 50%
лет
  • 10 лет
  • 20 лет
  • 30 лет
Загружаем предложения от застройщика и банков

Расположение

Корпус проверен наш.дом.рф
Обновлено 20 апреля 2026
  • Нет в реестре проблемных объектов
  • Застройщик не банкрот
  • Есть эскроу счёт
  • Актуальные фото стройки

Ещё квартиры в жилом комплексе

50 квартир в продаже · Сдача в 3 кв. 2027
Автор объявления

Застройщик «Триумф»

Надежный застройщик
Строительная компания «Триумф» — надежный застройщик с многолетним опытом. Мы строим комфортное жилье для вас так, как бы делали это для себя. Тщательно прорабатываем каждую деталь в будущих квартирах. Используем только качественные материалы, которые отв...
7 158 080 ₽
Цена за метр
95 339 ₽/м²
Условия сделки
долевое участие (214-ФЗ)