Мы используем куки-файлы. Соглашение об использовании
Общая площадь64,7 м²
Жилая площадь17,9 м²
Площадь кухни21,7 м²
Этаж3 из 8
Год сдачи2027
ДомНе сдан
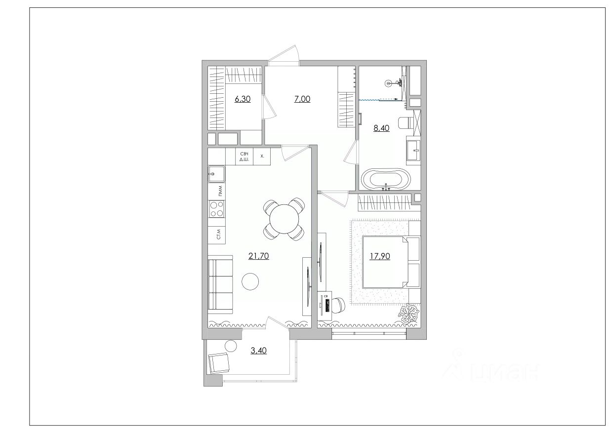
Эта квартира площадью 64,7 м2 - редкий и востребованный формат "элитной однокомнатной квартиры". Здесь пространство использовано для создания максимального ощущения свободы. Вас встречает холл площадью 7 м2. Это не узкий проход, а полноценная входная зона, где чувствуется масштаб всей квартиры. Главный секрет чистоты интерьера кроется в примыкающей гардеробной комнате площадью 6,3 м2. Это размер полноценной маленькой комнаты, превращенной в систему хранения. Благодаря этому решению, в жилых комнатах будет только эстетика и свободное пространство. Ванная комната 8,5 м2 — это визитная карточка жилья бизнес-класса. Фантазия дизайн-проекта сможет выйти за рамки стандартного подхода. Здесь легко воплотить любой сценарий. Смысловой центр квартиры - это кухня-гостиная площадью почти 22 м2. Огромное пространство позволяет четко зонировать помещение: • Зона кухни: функциональная и технологичная, где ничто не мешает кулинарным экспериментам. • Обеденная группа: место для большого стола, за которым комфортно соберутся друзья. • Зона отдыха: просторный диван перед ТВ-панелью. Прямой выход на балкон наполняет комнату светом и воздухом. Спальня площадью 18 м2 — территория абсолютного комфорта. Большая площадь позволяет не просто поставить кровать King-size, но и создать дополнительные зоны. Комната все равно остается просторной и "дышащей", способствуя качественному отдыху и глубокому сну. Эта квартира — манифест жизни "для себя". Здесь нет лишних стен, зато есть воздух, свет и объем. Сочетание огромной ванной, полноценной гардеробной и просторных жилых зон делает эту планировку эталоном современного комфорта для одного человека или пары, ценящих статус и личное пространство! Ключевые преимущества: Локация: Сердце города, 2 мин. до Первомайского проспекта. Инфраструктура: Собственный SPA с 25-м бассейном, фитнес, зал-трансформер, кафетерий. Инженерия: Индивидуальная котельная, канальное кондиционирование, умная защита от протечек. Безопасность: Охраняемая территория, подземный паркинг (100 мест, зарядки для EV). Отделка: На выбор из авторской дизайнерской палитры. Количество квартир: 97 эксклюзивных лотов! Описание: Новый эталон комфорта в стиле лучших отелей мира. ЖК "Цветной Бульвар" предлагает не просто квартиры, а готовую среду для свободной, насыщенной и стильной жизни. Продуманные инженерные системы, приватная курортная инфраструктура и безопасность высшего уровня. Это пространство, где каждая деталь создана для того, чтобы подчеркнуть ваш индивидуальный стиль!
Позвоните автору
Вам ответят на все вопросы

О квартире

Тип жилья

Новостройка

Общая площадь

64,7 м²

Жилая площадь

17,9 м²

Площадь кухни

21,7 м²

Высота потолков

3 м

Санузел

1 совмещенный

Балкон/лоджия

1 балкон

Вид из окон

На улицу и двор

О доме

Количество лифтов

3 пассажирских, 1 грузовой

Тип дома

Монолитный

Парковка

Подземная

Расположение

Ипотечный калькулятор
  • Базовая
  • Семейная
  • ИТ-ипотека
  • 20%
  • 30%
  • 40%
  • 50%
лет
  • 10 лет
  • 20 лет
  • 30 лет
Загружаем предложения от застройщика и банков
Помощь риелтора
Проверенный риелтор поможет купить или продать квартиру
Агентство недвижимости
СЗ ЦВЕТНОЙ БУЛЬВАР ( Рязань)
  • Менее 1 месяца на Циане
  • 97 объявлений
  • 21 027 500 ₽
    Цена за метр
    325 000 ₽/м²
    Условия сделки
    долевое участие (214-ФЗ)
    Ипотека
    возможна
    Агентство недвижимости
    СЗ ЦВЕТНОЙ БУЛЬВАР ( Рязань)