Мы используем куки-файлы. Соглашение об использовании
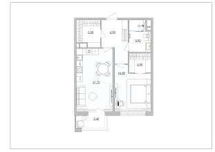
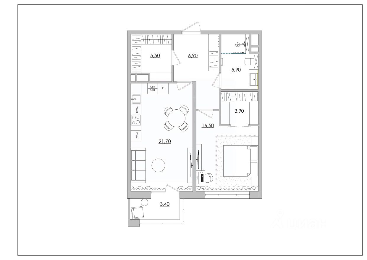
Общая площадь63,8 м²
Жилая площадь16,6 м²
Площадь кухни21,7 м²
Этаж5 из 8
Год сдачи2027
ДомНе сдан
Эта однокомнатная квартира площадью 63,8 м2 — идеальное пространство для человека или пары, которые ценят личный комфорт, эстетику и безупречное зонирование. Первое, что впечатляет — это квадратный холл площадью почти 7 м2. В отличие от узких коридоров, квадратная форма прихожей создает ощущение просторной "приемной". Слева при входе расположен гостевой туалет, а справа большая гардеробная зона. Это гениальное решение для однокомнатной квартиры: верхняя одежда и бытовые вещи скрыты от глаз, а гостям не нужно заходить в вашу приватную зону. Прихожая всегда остается чистой и эстетичной. Кухня-гостиная площадью почти 22 м2 —центром вашего дома. Здесь легко разместится полноценный кухонный гарнитур, обеденная группа и большая зона отдыха с глубоким диваном. Выход на балкон визуально расширяет комнату, наполняя её воздухом. Это идеальное место для завтраков на свежем воздухе или вечернего бокала вина с видом на город. Спальня в этой квартире спроектирована по канонам лучших люксовых апартаментов. Масштаб 16,5 м2 позволяет не ограничивать себя в выборе мебели. Главная роскошь — собственная ванная комната, вход в которую предусмотрен прямо из спальни. Это создает высочайший уровень комфорта: ваш утренний душ и вечерние ритуалы проходят в абсолютно защищенном, личном пространстве. Уникальность этой квартиры: 1. Два санузла в "однушке": Наличие гостевого туалета и отдельной ванной комнаты в спальне — это стандарт жилья премиум-класса, который крайне редко встречается в однокомнатных форматах. 2. Зонирование "Публичное / Приватное": Квартира четко разделена. Гостиная и гостевой санузел находятся в одной части, а спальня с личной ванной — в другой. Вы можете принимать гостей, сохраняя свою спальню в полной неприкосновенности. 3. Ощущение воздуха: Благодаря квадратной прихожей и просторным комнатам, квартира кажется гораздо больше своих 64 метров. В ней нет "мертвых зон" или тесных углов. Это жилье для тех, кто понимает: роскошь — это не количество комнат, а качество пространства. Здесь вы получаете максимум свободы, тишины и комфорта в каждой детали! Ваш комфорт: 25-м бассейн с SPA, современный фитнес-зал, зона для йоги, тихий кафетерий. Ваша безопасность: охраняемая территория, подземный паркинг, умные системы защиты от протечек. Ваш климат: инженерные системы премиум-класса (кондиционирование, вентиляция, индивидуальная котельная). Ваш стиль: авторские дизайнерские интерьеры на выбор. 97 эксклюзивных квартир бизнес-класса. Выберите ту, что станет продолжением вашей истории!
Позвоните автору
Вам ответят на все вопросы

О квартире

Тип жилья

Новостройка

Общая площадь

63,8 м²

Жилая площадь

16,6 м²

Площадь кухни

21,7 м²

Высота потолков

3 м

Санузел

2 совмещенных

Балкон/лоджия

1 балкон

Вид из окон

На улицу и двор

О доме

Количество лифтов

3 пассажирских, 1 грузовой

Тип дома

Монолитный

Парковка

Подземная

Расположение

Ипотечный калькулятор
  • Базовая
  • Семейная
  • ИТ-ипотека
  • 20%
  • 30%
  • 40%
  • 50%
лет
  • 10 лет
  • 20 лет
  • 30 лет
Загружаем предложения от застройщика и банков
Помощь риелтора
Проверенный риелтор поможет купить или продать квартиру
Агентство недвижимости
СЗ ЦВЕТНОЙ БУЛЬВАР ( Рязань)
  • Менее 1 месяца на Циане
  • 97 объявлений
  • 20 735 000 ₽
    Цена за метр
    325 000 ₽/м²
    Условия сделки
    долевое участие (214-ФЗ)
    Ипотека
    возможна
    Агентство недвижимости
    СЗ ЦВЕТНОЙ БУЛЬВАР ( Рязань)