Мы используем куки-файлы. Соглашение об использовании
Только на Циан
Площадь дома185 м²
Участок10,5 сот.
Материал домаКирпичный
Этажей в доме2
Год постройки2025
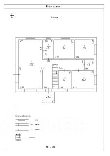
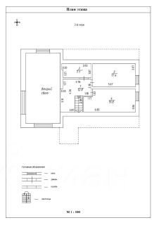
Продажа просторного кирпичного коттеджа в Рязанском районе — всего 10 км от Рязани. Дом расположен в деревне Дубровичи, по адресу Рязанская область, Рязанский район, д. Дубровичи. Расстояние до Рязани составляет 10 км (около 1520 минут на машине), до Москвы — 230 км по трассе М5. Общая площадь дома 185 м², участок 10,5 соток, ровный правильной формы. Дом двухэтажный, построен по индивидуальному проекту из керамического блока с облицовкой кирпичом, фундамент монолитный ленточный, кровля из металлочерепицы с утеплением минватой 200 мм. Окна ПВХ двухкамерные. Отопление газовое от двухконтурного котла Navien, водоснабжение от собственной скважины, электричество выделено 15 кВт, канализация септик. Планировка дома продумана для комфортного проживания большой семьи. На первом этаже площадью 128,3 м² с потолками 2,8 м расположены просторная кухня-столовая 67,9 м², объединяющая рабочую зону, островную барную стойку и гостиную, три спальни с собственными гардеробными, два санузла, прихожая и отдельная котельная с установленным газовым котлом, насосной станцией и системой водоподготовки. На втором этаже площадью 57,1 м² с потолками 2,6 м находятся две жилые комнаты с гардеробными и санузел. Все инженерные системы смонтированы, дом готов к чистовой отделке — вы получаете тёплый контур с автономными коммуникациями и свободой в выборе отделочных решений. Загородная жизнь даёт свои преимущества: собственный участок 10,5 соток позволяет обустроить сад, зону барбекю или детскую площадку, тишина и уединение дополняются полной автономностью — газ, скважина и септик избавляют от зависимости от городских сетей. При этом близость к Рязани (всего 10 км) обеспечивает лёгкий доступ к городской инфраструктуре — магазинам, школам, медицинским учреждениям, а до Москвы можно добраться по федеральной трассе примерно за 3 часа. В самом селе и окрестностях есть необходимая инфраструктура: магазины, школа, детский сад, медпункт, остановка общественного транспорта. Цена продажи 12 500 000 рублей фиксированная, возможен небольшой торг при быстром выходе на сделку. В стоимость входит дом с выполненными инженерными системами (газ, скважина, электричество), земельный участок в собственности и индивидуальный проект планировки. Объект подойдёт семьям с детьми, желающим жить в своём доме недалеко от города, людям с удалённой работой, ищущим просторное жильё в пригороде, а также инвесторам для вложений в загородную недвижимость рядом с Рязанью.
Позвоните автору
Вам ответят на все вопросы

О доме

Площадь

185 м²

Материал дома

Кирпичный

Состояние дома

Нужен ремонт

Количество этажей

2

Количество спален

6

Год постройки

2025

Об участке

Площадь

10,5 сот.

Категория земель

Земли населённых пунктов

Статус участка

Индивидуальное жилищное строительство

Коммуникации и удобства

Санузел

1 в доме

Канализация

Септик

Водоснабжение

Скважина

Отопление

Автономное газовое

Электричество

Есть

Газ

Магистральный в доме или на участке

Спросите умного помощника
Получите экспертное мнение о жилье

Расположение

Подпишитесь на объявления в этой локации
Мы сообщим, как только поблизости появится что‑нибудь новенькое

Рекомендуем коттеджные посёлки

Охрана, зоны отдыха и удобная инфраструктура
Ипотечный калькулятор
  • Базовая
  • Семейная
  • ИТ-ипотека
  • 20%
  • 30%
  • 40%
  • 50%
лет
  • 10 лет
  • 20 лет
  • 30 лет
Загружаем предложения от застройщика и банков
Хотите продать недвижимость?Разместите объявление на ЦианРазместить
12 250 000 ₽
Цена за метр
66 216 ₽/м²
Условия сделки
свободная продажа
Ипотека
возможна
Агентство недвижимости
Суперагент