


117 970 ₽/м²
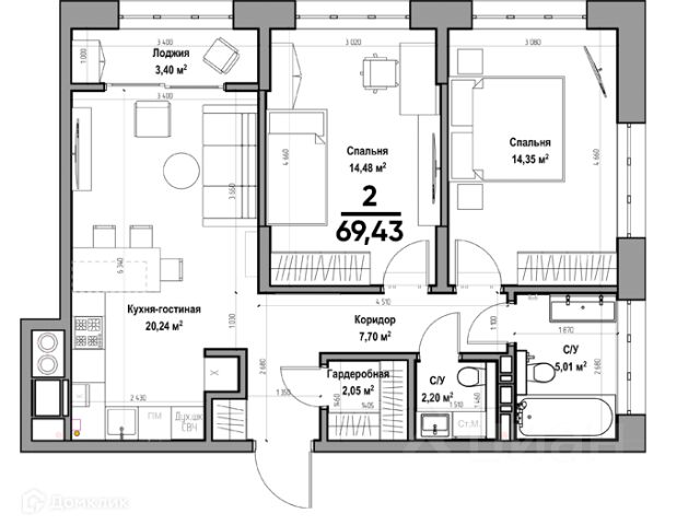
Квартира на "Бульваре оптимистов" — с видом на зелень и хорошее настроение Планировка СМАРТ 2.0 — просторная кухня-гостиная, спальня, гардероб. Потолки выше, чем обычно, окна почти в пол — в квартире светло, свободно и дышится легко. Индивидуальное отопление — сами решаете, когда включить тепло. И до 30% меньше в платёжке каждый месяц. Жилой комплекс в районе Дядьково — здесь воздух свежее, меньше машин и суеты. А ещё прямо во дворе свой бульвар с памятником оптимисту и зоной для прогулок. Атмосфера — своя, живая и лёгкая. Школы, детсады, магазины, аптеки — всё рядом. Есть паркинг, удобная развязка и остановка у дома. Подходит под ипотеку 6%! Легкие платежи и минимальная переплата. Звоните — расскажем всё без лишнего, покажем варианты. Добавьте в избранное — потом будет приятно вернуться именно к этой квартире.


























































































































