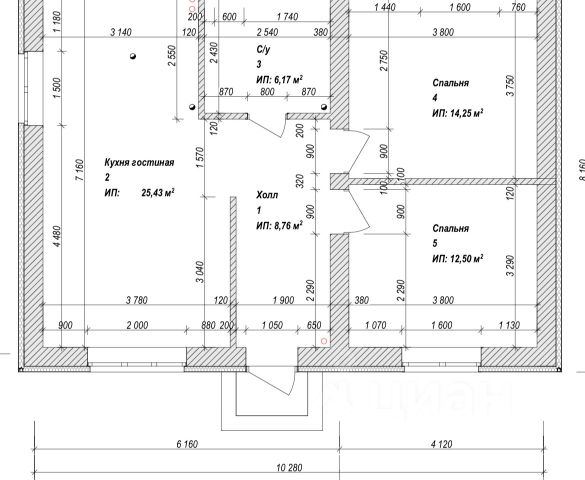
Предлагается к продаже новый, добротный дом, расположенный всего в 9 км от г. Рязани. Возводился с особым вниманием к качеству и деталям, исключительно для собственного проживания. Причина продажи приобретение другого объекта недвижимости. Строительство велось с соблюдением всех технологических норм. Зимой работы на объекте приостанавливались, чтобы гарантировать надежность конструкции. Стены дома выполнены из газосиликатных блоков, что обеспечивает отличную теплоизоляцию и комфортный микроклимат в любое время года. Облицовка фасада выполнена в стиле "баварская кладка", придающая дому элегантный и респектабельный внешний вид. Фундамент ленточный, глубиной 1.40 м, что гарантирует устойчивость и долговечность всей конструкции. Расположение дома отличается не только близостью к городу, но и развитой инфраструктурой. В шаговой доступности находятся комплексы для отдыха и развлечений, а также живописные каскадные пруды, где можно наслаждаться природой и проводить время с семьей и друзьями. Все необходимые коммуникации проходят по границе участка, что значительно упрощает их подключение. Территория КП "Новая Сергеевка" находится под охраной, что обеспечивает безопасность и спокойствие жильцов. Принадлежность к Якимовской администрации гарантирует отсутствие дополнительных взносов. Не упустите возможность стать обладателем этого прекрасного дома! Звоните прямо сейчас, чтобы узнать больше и договориться о просмотре. Арт. 126252716
























































