Мы используем куки-файлы. Соглашение об использовании
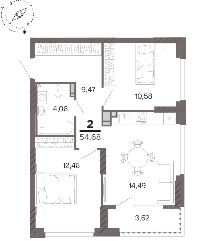
Общая площадь54,68 м²
Жилая площадь23 м²
Этаж7 из 23
Год сдачи2029
ДомНе сдан
ОтделкаБез отделки
Инвестируйте в квартиры в новостройках Рязани! Это надёжный актив: низкий порог входа, высокий спрос на аренду и перепродажу, выгодное расположение рядом с Москвой. Жилой квартал "Бережно" — это проект класса Бизнес, созданный с уважением к городу и вниманием к человеку. Дом расположен в самом сердце Рязани, на пересечении улиц Полевая и Введенская, в уникальной локации, где городской ритм гармонично сочетается с набережной и зелеными маршрутами. Жить здесь — значит находиться в эпицентре событий и при этом иметь возможность всего за три минуты оказаться в тенистых аллеях ЦПКиО или у зеркальной глади Рюминского пруда. Мы спроектировали дом так, чтобы он стал продолжением парка и набережной. Благодаря панорамным окнам в квартирах всегда много света, а современный фасад из материалов благородных оттенков делает здание легким и эстетичным в любое время года. Приватный двор-сад на стилобат создает пространство, полностью защищенное от машин, шума и посторонних глаз. Для комфорта резидентов в любое время года здесь реализованы подогреваемые тротуарные дорожки, которые остаются сухими и безопасными даже в сильный снегопад или гололед. Собственный фитнес-зал расположен прямо в тихом дворе-саду. Благодаря панорамным стеклам вы тренируетесь с видом на зелень и при естественном свете. Это ваша личная зона спорта, куда можно выйти прямо из подъезда в любое удобное время. Весь транспорт при этом скрыт в отапливаемом подземном паркинге, оснащенном зарядками для электромобилей и системой распознавания номеров, откуда можно на лифте подняться прямо к дверям своей квартиры. Мы сделали квартиры просторными не только по площади, но и по высоте: 3 метра в стандартных планировках и 3,6 метра в пентхаусах. Это формат жилья, где легко дышится. А собственные террасы на верхних этажах позволяют организовать лаунж-зону с видом на город прямо у себя дома. Инженерия комплекса работает на ваш комфорт незаметно и надежно: в каждой спальне установлены бризеры для подачи очищенного воздуха при закрытых окнах, а система "плавающего пола" обеспечивает тишину, оберегая от городского шума. Собственная крышная котельная дает полную независимость от сезонных отключений воды и позволяет самостоятельно управлять климатом в доме. Жизнь в "Бережно" — это привилегия пользоваться всеми удобствами центра, не теряя время на дорогу. Ритейл-галерея на первом этаже с уютными кафе и необходимыми сервисами дополняет закрытую экосистему дома, позволяя решать повседневные дела буквально по пути к дизайнерским лобби. Это пространство, где современные технологии, статусное жилье и близость к природе объединены в единую философию бережного отношения к вашему времени и отдыху.
Позвоните автору
Вам ответят на все вопросы

О квартире

Тип жилья

Новостройка

Общая площадь

54,68 м²

Жилая площадь

23 м²

Высота потолков

3 м

Балкон/лоджия

1 лоджия

Отделка

Без отделки

О доме

Тип дома

Монолитно-кирпичный

Пандус

Есть

Расположение

Ипотечный калькулятор
  • Базовая
  • Семейная
  • ИТ-ипотека
  • 20%
  • 30%
  • 40%
  • 50%
лет
  • 10 лет
  • 20 лет
  • 30 лет
Загружаем предложения от застройщика и банков
Помощь риелтора
Проверенный риелтор поможет купить или продать квартиру
Агентство недвижимости
Северная Компания
  • 3 года 2 месяца на Циане
  • 1140 объявлений
  • 9 335 751 ₽
    Цена за метр
    170 734 ₽/м²
    Условия сделки
    свободная продажа
    Агентство недвижимости
    Северная Компания