Мы используем куки-файлы. Соглашение об использовании
Общая площадь106,7 м²
Жилая площадь39,1 м²
Площадь кухни23,7 м²
Этаж2 из 8
Год сдачи2027
ДомНе сдан
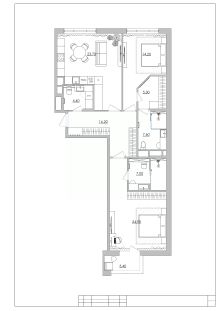
Квартира 106,7 м2 представляет собой редкое сочетание простора и исключительной приватности. Формат "распашонки" (окна на две стороны) в сочетании с продуманным зонированием делает её идеальным вариантом для тех, кто ценит личный комфорт и не готов к компромиссам в организации быта. Кухня-гостиная — Центр притяжения. Пространство 23 м2 объединяет в себе функционал двух комнат, оставаясь при этом уютным и светлым. • Зонирование: площадь позволяет четко разделить рабочую зону кухни и зону отдыха. В одной части логично размещается современный гарнитур с необходимой техникой, в другой — мягкая группа с диваном и ТВ-зоной. • Атмосфера: благодаря расположению, эта зона становится идеальным местом для семейных завтраков и приема гостей, не нарушая тишину в спальнях. Главная спальня-лаунж. Это настоящая "территория спокойствия", впечатляющая своими размерами. • Масштаб: 25 м2 — это площадь, превышающая стандарты обычных спален. Здесь легко поместится кровать размера king-size, туалетный столик или даже зона для чтения с креслом. • Гардеробная: собственная гардеробная комната позволяет полностью отказаться от громоздких шкафов в жилой зоне, сохраняя эстетику и чистоту линий. • Выход на балкон: наличие собственного балкона превращает спальню в приватный оазис. Вторая мастер-спальня с индивидуальными удобствами. Вторая комната спроектирована как полностью автономный блок. • Личный комфорт: наличие собственного санузла внутри комнаты выводит приватность на новый уровень — это стандарт жилья премиального класса. • Система хранения: индивидуальная гардеробная при этой спальне позволяет организовать хранение вещей максимально удобно и под рукой. Особенности и преимущества планировки: • Двусторонняя ориентация: благодаря окнам, выходящим на разные стороны дома, в квартире всегда будет свежий воздух (сквозное проветривание) и разное освещение в течение дня — от бодрящих утренних лучей в одной комнате до мягкого закатного солнца в другой. • Максимальная приватность: спальни разнесены друг от друга, что гарантирует тишину. Никто не мешает друг другу. • Отсутствие визуального шума: благодаря двум отдельным гардеробным, все вещи скрыты от глаз, что позволяет сохранить интерьер свободным и минималистичным. Эта квартира для тех, кто любит воздух и пространство. Здесь нет "лишних" метров — каждый квадрат работает на комфорт жильцов, обеспечивая каждому члену семьи свой собственный независимый "мир" внутри дома. Ваша приватная курортная зона: Бассейн & SPA: 25 метров удовольствия с панорамными окнами. Фитнес и трансформер-зал: для энергии и релакса. Кофейная зона: место для тишины и значимых пауз. Инженерная мысль для вашего спокойствия: Индивидуальная котельная: тепло и ГВС круглый год, без зависимости от города. Умные системы: климат-контроль, защита от протечек, принудительная вентиляция. Готовые коммуникации: заезжайте и живите. Безопасность и удобство: Охраняемая территория и подземный паркинг на 100 мест с зарядками для электромобилей. Идеальная

О квартире

Тип жилья

Новостройка

Общая площадь

106,7 м²

Жилая площадь

39,1 м²

Площадь кухни

23,7 м²

Высота потолков

3 м

Санузел

2 совмещенных, 1 раздельный

Балкон/лоджия

1 балкон

Вид из окон

На улицу и двор

О доме

Количество лифтов

3 пассажирских, 1 грузовой

Тип дома

Монолитный

Парковка

Подземная

Понравилась квартира — узнайте о ней больше

Застройщик ответит на все вопросы

Варианты отделки в ЖК

  • Предчистовая
Похоже на то, что вы ищете?

Акции в ЖК «Цветной бульвар»

Узнайте про персональные условия и дополнительные скидки при покупке квартиры у застройщика
Ипотечный калькулятор
  • Базовая
  • Семейная
  • ИТ-ипотека
  • 20%
  • 30%
  • 40%
  • 50%
лет
  • 10 лет
  • 20 лет
  • 30 лет
Загружаем предложения от застройщика и банков

Расположение

Корпус проверен наш.дом.рф
Обновлено 22 апреля 2026
  • Нет в реестре проблемных объектов
  • Застройщик не банкрот
  • Есть эскроу счёт
  • Актуальные фото стройки
ЗастройщикСЗ ЦВЕТНОЙ БУЛЬВАР ( Рязань)
Строится: 1 дом в 1 ЖК
46 414 500 ₽
Цена за метр
435 000 ₽/м²
Условия сделки
долевое участие (214-ФЗ)
Ипотека
возможна