Мы используем куки-файлы. Соглашение об использовании
Общая площадь111,9 м²
Жилая площадь36,4 м²
Площадь кухни38,4 м²
Этаж3 из 8
Год сдачи2027
ДомНе сдан
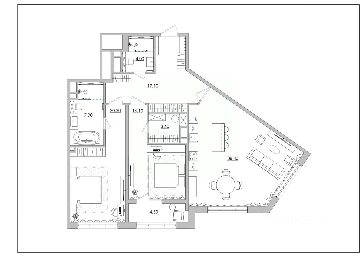
Статусное жилье 111,9 м2, которое по своим масштабам и уровню комфорта приближается к формату частной резиденции. При входе вас встречает парадный коридор площадью 17 м2. Здесь можно организовать полноценную систему хранения, скрытую за зеркальными панелями, или превратить пространство в арт-холл с коллекцией живописи и дизайнерским освещением. Для удобства владельцев и гостей прямо в этой зоне расположен гостевой туалет, что позволяет сохранить приватность жилых комнат. Эпицентр квартиры — невероятная по размеру кухня-гостиная площадью 38 м2. По площади это помещение сопоставимо с целой однокомнатной квартирой. Наличие двух больших окон наполняет пространство естественным светом в течение всего дня. Такое пространство позволяет реализовать любые мечты: кухонный "остров", за которым приятно завтракать, монументальный обеденный стол для званых ужинов и огромный диван в зоне домашнего кинотеатра. Здесь легко дышится даже при большом количестве гостей. Первая мастер-зона - спальня создана для тех, кто ценит комфорт уровня пятизвездочного отеля. Огромная площадь позволяет разместить кровать формата Super King-Size, зону для отдыха с парой кресел или даже библиотеку. Ванная комната 8 м2 это территория абсолютного уединения. Достаточно места для большой ванны, отдельной душевой кабины, двойной раковины и всей необходимой мебели для косметики и банных принадлежностей. Вторая спальня спроектирована с акцентом на функциональность и связь с внешним миром. Наличие собственной гардеробной комнаты внутри спальни избавляет от необходимости ставить шкафы, сохраняя чистоту линий интерьера. Большая лоджия становится продолжением комнаты. Это идеальное место для создания зимнего сада, кабинета на свежем воздухе или уютной лаунж-зоны с видом на город. Уникальность этой квартиры проста : соотношение жилой площади к площади коридоров и санузлов идеально сбалансировано для жизни в удовольствие. Квартира фактически разделена на общественное пространство и два независимых жилых блока, что идеально подходит для семьи, ценящей личные границы. Площадь 111,9 м2 в такой планировке создают ощущение безграничного простора. Здесь нет тесных углов, только широкие проходы и масштабные комнаты. Эта квартира — идеальный выбор для людей, которые достигли успеха и хотят, чтобы их дом отражал их внутреннюю свободу и стремление к лучшему! Ваша приватная курортная зона: Бассейн & SPA: 25 метров удовольствия с панорамными окнами. Фитнес и трансформер-зал: для энергии и релакса. Кофейная зона: место для тишины и значимых пауз. Инженерная мысль для вашего спокойствия: Индивидуальная котельная: тепло и ГВС круглый год, без зависимости от города. Умные системы: климат-контроль, защита от протечек, принудительная вентиляция. Готовые коммуникации: заезжайте и живите. Безопасность и удобство: Охраняемая территория и подземный паркинг на 100 мест с зарядками для электромобилей. Идеальная локация: 2 минуты до Первомайского проспекта — вы в центре событий и в шаге от загородных марш
Позвоните автору
Вам ответят на все вопросы

О квартире

Тип жилья

Новостройка

Общая площадь

111,9 м²

Жилая площадь

36,4 м²

Площадь кухни

38,4 м²

Высота потолков

3 м

Санузел

2 совмещенных

Балкон/лоджия

1 балкон

Вид из окон

На улицу и двор

О доме

Количество лифтов

3 пассажирских, 1 грузовой

Тип дома

Монолитный

Парковка

Подземная

Расположение

Ипотечный калькулятор
  • Базовая
  • Семейная
  • ИТ-ипотека
  • 20%
  • 30%
  • 40%
  • 50%
лет
  • 10 лет
  • 20 лет
  • 30 лет
Загружаем предложения от застройщика и банков
Помощь риелтора
Проверенный риелтор поможет купить или продать квартиру
Агентство недвижимости
СЗ ЦВЕТНОЙ БУЛЬВАР ( Рязань)
  • Менее 1 месяца на Циане
  • 97 объявлений
  • 36 367 500 ₽
    Цена за метр
    325 000 ₽/м²
    Условия сделки
    долевое участие (214-ФЗ)
    Ипотека
    возможна
    Агентство недвижимости
    СЗ ЦВЕТНОЙ БУЛЬВАР ( Рязань)