Мы используем куки-файлы. Соглашение об использовании
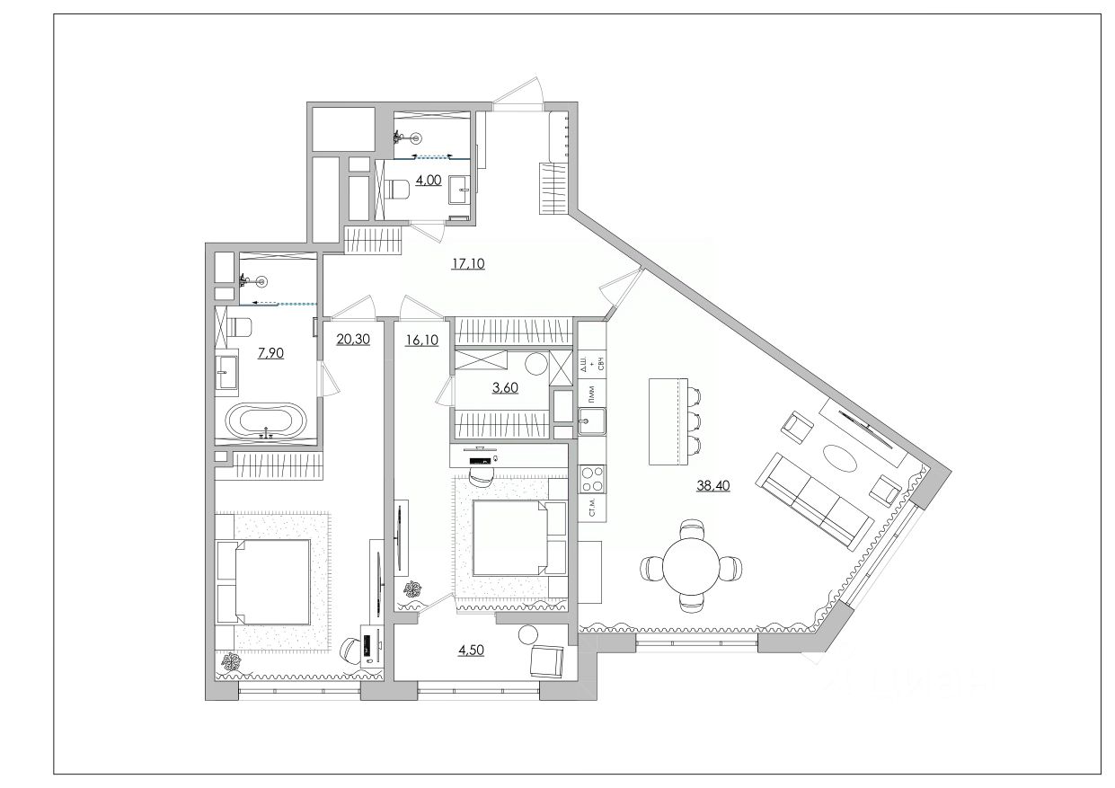
Общая площадь111,9 м²
Жилая площадь36,4 м²
Площадь кухни38,4 м²
Этаж4 из 8
Год сдачи2027
ДомНе сдан
Статусное жилье 111,9 м2, которое по своим масштабам и уровню комфорта приближается к формату частной резиденции. При входе вас встречает парадный коридор площадью 17 м2. Здесь можно организовать полноценную систему хранения, скрытую за зеркальными панелями, или превратить пространство в арт-холл с коллекцией живописи и дизайнерским освещением. Для удобства владельцев и гостей прямо в этой зоне расположен гостевой туалет, что позволяет сохранить приватность жилых комнат. Эпицентр квартиры — невероятная по размеру кухня-гостиная площадью 38 м2. По площади это помещение сопоставимо с целой однокомнатной квартирой. Наличие двух больших окон наполняет пространство естественным светом в течение всего дня. Такое пространство позволяет реализовать любые мечты: кухонный "остров", за которым приятно завтракать, монументальный обеденный стол для званых ужинов и огромный диван в зоне домашнего кинотеатра. Здесь легко дышится даже при большом количестве гостей. Первая мастер-зона - спальня создана для тех, кто ценит комфорт уровня пятизвездочного отеля. Огромная площадь позволяет разместить кровать формата Super King-Size, зону для отдыха с парой кресел или даже библиотеку. Ванная комната 8 м2 это территория абсолютного уединения. Достаточно места для большой ванны, отдельной душевой кабины, двойной раковины и всей необходимой мебели для косметики и банных принадлежностей. Вторая спальня спроектирована с акцентом на функциональность и связь с внешним миром. Наличие собственной гардеробной комнаты внутри спальни избавляет от необходимости ставить шкафы, сохраняя чистоту линий интерьера. Большая лоджия становится продолжением комнаты. Это идеальное место для создания зимнего сада, кабинета на свежем воздухе или уютной лаунж-зоны с видом на город. Уникальность этой квартиры проста : соотношение жилой площади к площади коридоров и санузлов идеально сбалансировано для жизни в удовольствие. Квартира фактически разделена на общественное пространство и два независимых жилых блока, что идеально подходит для семьи, ценящей личные границы. Площадь 111,9 м2 в такой планировке создают ощущение безграничного простора. Здесь нет тесных углов, только широкие проходы и масштабные комнаты. Эта квартира — идеальный выбор для людей, которые достигли успеха и хотят, чтобы их дом отражал их внутреннюю свободу и стремление к лучшему! Ключевые преимущества: Локация: Сердце города, 2 мин. до Первомайского проспекта. Инфраструктура: Собственный SPA с 25-м бассейном, фитнес, зал-трансформер, кафетерий. Инженерия: Индивидуальная котельная, канальное кондиционирование, умная защита от протечек. Безопасность: Охраняемая территория, подземный паркинг (100 мест, зарядки для EV). Отделка: На выбор из авторской дизайнерской палитры. Количество квартир: 97 эксклюзивных лотов! Описание: Новый эталон комфорта в стиле лучших отелей мира. ЖК "Цветной Бульвар" предлагает не просто квартиры, а готовую среду для свободной, насыщенной и стильной жизни. Продуманные инженерные системы,

О квартире

Тип жилья

Новостройка

Общая площадь

111,9 м²

Жилая площадь

36,4 м²

Площадь кухни

38,4 м²

Высота потолков

3 м

Санузел

2 совмещенных

Балкон/лоджия

1 балкон

Вид из окон

На улицу и двор

О доме

Количество лифтов

3 пассажирских, 1 грузовой

Тип дома

Монолитный

Парковка

Подземная

Понравилась квартира — узнайте о ней больше

Застройщик ответит на все вопросы

Варианты отделки в ЖК

  • Предчистовая
Похоже на то, что вы ищете?

Акции в ЖК «Цветной бульвар»

Узнайте про персональные условия и дополнительные скидки при покупке квартиры у застройщика
Ипотечный калькулятор
  • Базовая
  • Семейная
  • ИТ-ипотека
  • 20%
  • 30%
  • 40%
  • 50%
лет
  • 10 лет
  • 20 лет
  • 30 лет
Загружаем предложения от застройщика и банков

Расположение

Корпус проверен наш.дом.рф
Обновлено 22 апреля 2026
  • Нет в реестре проблемных объектов
  • Застройщик не банкрот
  • Есть эскроу счёт
  • Актуальные фото стройки
ЗастройщикСЗ ЦВЕТНОЙ БУЛЬВАР ( Рязань)
Строится: 1 дом в 1 ЖК
36 367 500 ₽
Цена за метр
325 000 ₽/м²
Условия сделки
долевое участие (214-ФЗ)
Ипотека
возможна