Мы используем куки-файлы. Соглашение об использовании
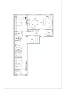
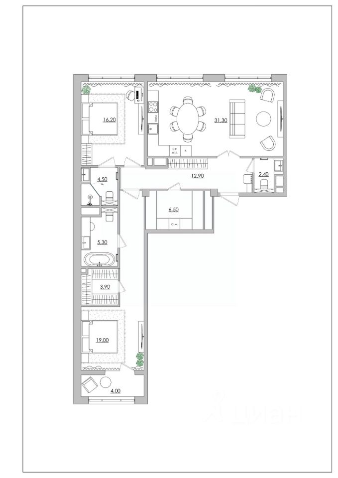
Общая площадь106 м²
Жилая площадь35,2 м²
Площадь кухни31,3 м²
Этаж6 из 8
Год сдачи2027
ДомНе сдан
Эта двухкомнатная квартира площадью 106 м2 представляет собой образец современного комфорта и продуманной эргономики. Благодаря планировке на две стороны ("распашонка"), квартира максимально наполнена естественным светом и легко проветривается. 1. Прихожая и гостевая зона При входе в квартиру вы попадаете в просторный холл площадью 13 кв. м. Это не просто узкий коридор, а полноценное функциональное пространство. • Хранение: Площадь позволяет установить глубокий встроенный шкаф-купе или обустроить стильную гардеробную систему для верхней одежды и обуви. • Гостевой санузел: Расположен удобно у входа, что позволяет гостям не заходить в приватную зону спален, а хозяевам — быстро помыть руки после улицы. 2. Кухня-гостиная — сердце дома Это масштабное пространство, залитое светом благодаря двум большим окнам. Площадь в 30 м2 позволяет четко разделить комнату на две функциональные зоны: • Кухонно-обеденная зона: Здесь свободно размещается современный гарнитур (возможно, с "островом") и полноценный обеденный стол на 68 персон у одного из окон. • Зона отдыха: У второго окна идеально встанет большой угловой диван и мультимедийная система. Это идеальное место для семейных вечеров и приема компаний. 3. Первая мастер-спальня (VIP-Suite) Это главная комната в доме, представляющая собой автономную зону для отдыха: • Собственная гардеробная: Отдельное помещение внутри спальни избавляет от необходимости ставить громоздкие шкафы, сохраняя ощущение простора. • Индивидуальная ванная комната: Личный санузел, доступ в который есть только из этой комнаты. • Лоджия: Выход на большую застекленную лоджию превращает спальню в настоящий лаунж. Здесь можно обустроить рабочее место (кабинет), зимний сад или поставить пару кресел для утреннего кофе. 4. Вторая мастер-спальня Расположена в другой части квартиры, что обеспечивает приватность всем членам семьи. • Она также оборудована собственным полноценным санузлом, что делает её идеальной для ребенка, подростка или в качестве гостевой комнаты высокого уровня. • Окно выходит на противоположную сторону дома, что создает отличный обзор и позволяет солнцу освещать квартиру в течение всего дня. Главные преимущества такой планировки: Приватность: Наличие двух мастер-спален — это стандарт жилья бизнес- и премиум-класса. У каждого члена семьи есть свое полностью автономное пространство. Простор: 106 м2 для двухкомнатной квартиры — это редкий формат, где нет тесных углов, а каждое помещение ощущается "воздушным". Свет и воздух: Окна на две стороны обеспечивают идеальную инсоляцию: в одной части квартиры будет рассвет, в другой — мягкий вечерний свет. Функциональность: Наличие гостевого туалета и отдельной гардеробной делает быт максимально организованным. Эта квартира идеально подойдет для семьи, которая ценит комфорт и личное пространство, где каждому важен свой уровень приватности! Ваша приватная курортная зона в ЖК "Цветной Бульвар": Бассейн & SPA: 25 метров удовольствия с панорамными окнами. Фитнес и трансфор

О квартире

Тип жилья

Новостройка

Общая площадь

106 м²

Жилая площадь

35,2 м²

Площадь кухни

31,3 м²

Высота потолков

3 м

Санузел

2 совмещенных, 1 раздельный

Балкон/лоджия

1 балкон

Вид из окон

На улицу и двор

О доме

Количество лифтов

3 пассажирских, 1 грузовой

Тип дома

Монолитный

Парковка

Подземная

Понравилась квартира — узнайте о ней больше

Застройщик ответит на все вопросы

Варианты отделки в ЖК

  • Предчистовая
Похоже на то, что вы ищете?

Акции в ЖК «Цветной бульвар»

Узнайте про персональные условия и дополнительные скидки при покупке квартиры у застройщика
Ипотечный калькулятор
  • Базовая
  • Семейная
  • ИТ-ипотека
  • 20%
  • 30%
  • 40%
  • 50%
лет
  • 10 лет
  • 20 лет
  • 30 лет
Загружаем предложения от застройщика и банков

Расположение

Корпус проверен наш.дом.рф
Обновлено 22 апреля 2026
  • Нет в реестре проблемных объектов
  • Застройщик не банкрот
  • Есть эскроу счёт
  • Актуальные фото стройки
ЗастройщикСЗ ЦВЕТНОЙ БУЛЬВАР ( Рязань)
Строится: 1 дом в 1 ЖК
34 450 000 ₽
Цена за метр
325 000 ₽/м²
Условия сделки
долевое участие (214-ФЗ)
Ипотека
возможна