Первичная продажа



4 акции
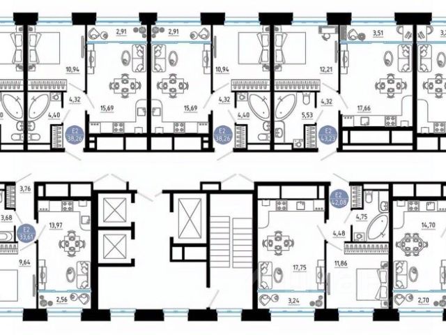
С отделкой
сдача ГК: 1 кв. 2028 года
2 857 950 ₽
143 543 ₽/м²
- электропроводка на медном кабеле 220 V с установкой электрического щита на лестничной площадке и распределительного щита в квартире;- штукатурка кирпичных стен, кроме стен лоджий, откосов дверных и оконных проемов, ниш прохождения стояков водопровода и канализации; - стяжка пола;- шумоизоляция пола;- система отопления и горячего водоснабжения от крышной котельной с установкой прибора учета расхода тепла;- установлены приборы (радиаторы)отопления;- установлена силовая электрическая розетка для самостоятельной установки Участником электрической плиты;- установлено стеновое приточное устройство Домвент;- смонтированы внутриквартирные стояки холодного, горячего водоснабжения и водоотведения (канализация) с установкой приборов учета. Разводка труб водоснабжения и водоотведения (канализация) до сантехнических приборов не производится, сантехнические приборы: унитаз, ванна, мойка, раковина- не устанавливаются;- установлена электрическая розетка для подключения электрического полотенцесушителя.. Электрический полотенцесушитель не устанавливается;- оконные проемы без выхода на лоджии остеклены ПВХ-профилем с отливом без подоконников; оконные проемы с выходом на лоджии остеклены ПВХ-профилем, без отлива без подоконника; лоджии остеклены, москитные сетки не предусмотрены, места запенивания монтажной пеной и укрывания гидроизоляционным герметиком не штукатурятся;- установлена входная металлическая дверь;- установлена трубка домофона, обеспечен доступ для подключения к телевизионному вещанию, интернету и телефонной линии.

























































































